你的瀏覽器已禁用javascript,請啟用javascript,否則網頁將非正常運行!


  • 深夜福利影院,深夜网站免费观看,深夜国产福利APP导航,深夜福利精品午夜成人

    學校深夜网站免费观看工程


  • 深夜福利影院,深夜网站免费观看,深夜国产福利APP导航,深夜福利精品午夜成人

    COMPOSITION

    酒店深夜网站免费观看組成部分

    星級酒店的裝飾、設備都十分豪華,擁有全麵的綜合服務,是社交、會議、娛樂、購物、消遣、保健等活動的中心。星級酒店首先應有布局合理、裝飾豪華的西餐廳,能提供自助早餐和西餐正餐,需配備專門的西餐深夜网站免费观看等;其次需開設具有特色、格調高雅的咖啡廳;具備功能齊全的小宴會廳、封閉式酒吧間等。星級酒店同時需要有布局合理、裝飾豪華的中餐廳和規模較大的宴會廳等,應配備能夠滿足大型宴會需要的宴會深夜网站免费观看,至少可以提供兩種及以上風味的中餐等,為顧客提供更多就餐選擇。

    酒店深夜网站免费观看工程 酒店深夜网站免费观看工程
    西餐深夜网站免费观看 西餐深夜网站免费观看
    酒吧間 酒吧間
    咖啡廳 咖啡廳
    中餐深夜网站免费观看 中餐深夜网站免费观看

    RegionalDivision

    酒店深夜网站免费观看區域劃分

    星級酒店的餐廳規模一般以客房的床位數作為計算依據,一個床位等於一個餐位,每一個餐位平均占地二平方米(不包括多功能廳或大宴會廳)。根據酒店所處的位置,如需要對店外餐飲消費者開放,則按照市場需求增加餐飲麵積。為住客準備的就餐餐廳座位數不應少於床位數的80%,餐廳的建築設計應按照現行的飲食建築設計規範中有關餐館部分的規定執行。

    深夜网站免费观看麵積一般為餐廳麵積的30%-40%左右,深夜网站免费观看與餐廳應緊密相連,為確保菜品的色、香、味等質量,在沒有保溫設備的條件下,從深夜网站免费观看把飯菜送到客人的餐桌最好不超 過20米的距離。有些飯店受到場地或建築結構、格局的限製,深夜网站免费观看的加工間或點心間,甚至冷菜、燒烤等製作間,可以不與餐廳在同一樓層,但烹調深夜网站免费观看必須與餐廳在同 一樓層。考慮到餐飲製作的效率和安全,尤其是會議、團隊等大批量出品,可能需用推車服務,因此,烹調深夜网站免费观看與餐廳應位於同一平麵,不

    RegionalDivision

    酒店深夜网站免费观看特殊性

    Design considerations

    深夜福利影院對酒店深夜网站免费观看把控

    酒店深夜网站免费观看工程應注意的事項

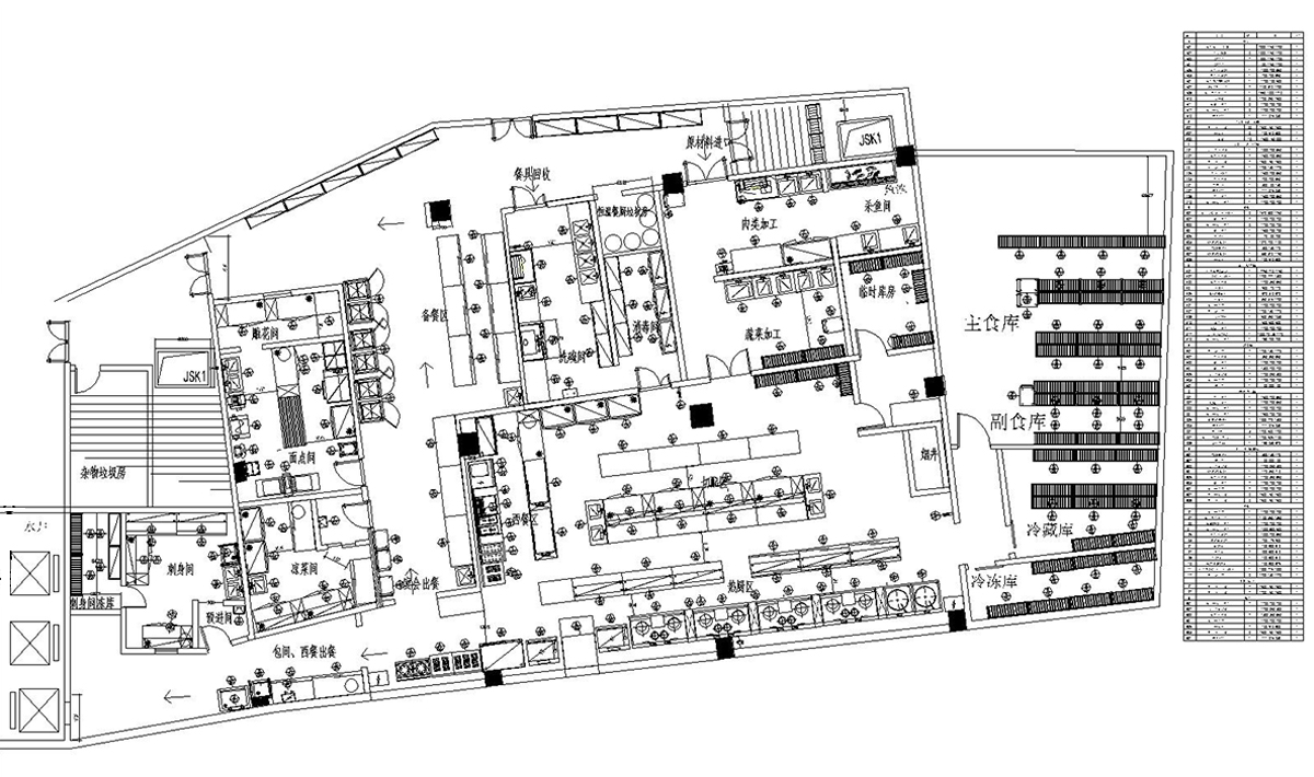
    酒店深夜网站免费观看應具備加工間、製作間、備餐間、庫房、洗碗消毒間、廚師長辦公室及廚工服務用房等。 深夜福利影院對布局、路線、分區、排水等方麵均按照國家相關法律法規進行設計,考慮到餐飲的生產, 從原材料的采購、收貨、入庫、存儲、保管到出庫、粗加工、切配、烹飪、裝盤出品等多方麵進 行設計。應關注以下幾個方麵:根據生產、出品的次序布局; 避免進、出深夜网站免费观看的物流產生交叉與 回流;避免人流與物流的交叉及員工流與客流的交叉;盡量縮短員工製作菜肴的行走路線;注意 潔、汙,生、熟的分區;深夜网站免费观看的所有排水須經過隔油池隔除油汙後方可排放出。

    Implementation process

    工程實施流程

    Why did you choose us?

    為什麽選擇深夜福利影院

    • 豐富的深夜网站免费观看設計經驗
    • 專業化施工隊伍
    • 實力雄厚品質保障
    豐富的深夜网站免费观看設計經驗
    豐富的深夜网站免费观看設計經驗
    豐富的深夜网站免费观看設計經驗
    豐富的深夜网站免费观看設計經驗
    專業化施工隊伍
    專業化施工隊伍
    專業化施工隊伍
    專業化施工隊伍
    實力雄厚品質保障
    實力雄厚品質保障
    實力雄厚品質保障
    實力雄厚品質保障

    Service case

    工程服務深夜福利精品午夜成人

    成都恒鼎世紀酒店
    成都恒鼎世紀酒店
    同喜來酒店
    同喜來酒店
    達州騰達酒店
    達州騰達酒店
    成五糧液五星級接待中心
    成五糧液五星級接待中心
    成都321創意產業園創意餐廳
    成都321創意產業園創意餐廳
    金堂金尚城五星級酒店
    金堂金尚城五星級酒店
    成都翠玲瓏新概念餐廳
    成都翠玲瓏新概念餐廳
    巴中恩陽酒店
    巴中恩陽酒店

    About Ubat

    關於深夜福利影院

    網站地圖
  • 
    網站地圖